BR0.65系列



板式换热器BR0.65板片材质:*不锈钢SUS304 SUS316L净水、河川水、食物油、矿物油*工业纯钛及钛钯合金Ti tanium and Pal ladium海水、盐水、盐化物*哈氏合金Hadtelloy Alloy浓硫酸、盐酸、磷酸*镍Nickel高温高浓度苛性钠板式换热器BR0.65垫片材质:*丁腈橡胶NBR水、海水、矿物油、盐水 一15--1IO~C*高温橡胶BNBR -高温矿物油、高温水 15--140~C*三元乙丙EPDM热水、水蒸气、酸、碱 一25--150~C*氟橡胶 Viton/Fluorine Rubber强酸、强碱、矿物油、润滑脂和燃油等 一5--180~C*氯丁橡胶NEOPRENE酸、碱、矿物油、低分子量脂烃 一35--130~C*硅橡胶Silicon Rubber高温和某些腐蚀性介质 一65-200℃板式换热器应用范围:a.制冷:用作冷凝器和蒸发器。b.暖通空调:配合锅炉使用的中间换热器、高层建筑中间换热器等。c.化学工业:纯碱工业,合成氨,酒精发酵,树脂合成冷却等。d.冶金工业:铝酸盐母液加热或冷却,炼钢工艺冷却等。e.机械工业:各种淬火液冷却,减速器润滑油冷却等。f.电力工业:高压变压器油冷却,发电机轴承油冷却等。g.造纸工业:漂白工艺热回收,加热洗浆液等。h.纺织工业:粘胶丝碱水溶液冷却,沸腾硝化纤维冷却等。i.食品工业:果汁灭菌冷却,动植物油加热冷却等。j.油脂工艺:皂基常压干燥,加热或冷却各种工艺用液。k.集中供热:热电厂废热区域供暖,加热洗澡用水。l.其他:石油、医药、船舶、海水淡化、地热利用。
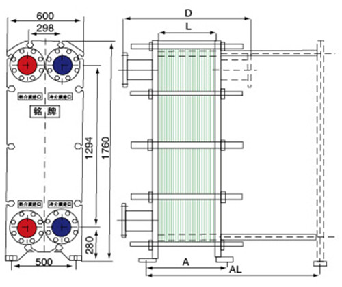
可拆式板式换热器主要由传热板片、密封垫片、两端压板、夹紧螺栓、支架、法兰或衬套、地脚组成。各部件作用如下:
一、传热板片
传热板片是换热器主要起换热作用的元件,一般波纹做成人字形(当然也有些厂家经过研究有属于自己的版型),按照流体介质的不同,传热板片的材质也不一样,大多采用不锈钢304/316L和钛材制作而成。通常用模具将板片压制成各种槽型或波纹型,既可以增大板片的刚度,防止板片受压时变形,也增强了流体的湍流程度,增强了换热效果
二、密封垫片
板式换热器的密封垫片主要是在换热板片之间起密封作用。材质有:丁腈橡胶,三元乙丙橡胶,氟橡胶等,根据不同介质采用不同橡胶,胶垫富有弹性,有利于密封,也方便拆卸!每一款胶垫都是按照每一款换热板片板型设计加工而成,有着非常好的密封性!
三、两端压板
两端压板主要是夹紧压住所有的传热板片,保证流体介质不泄漏。碳钢板生产工艺是买回钢板用切割机按一定的尺寸切割好,然后进行打磨,整形,再进行喷砂处理、喷砂使其更好的防锈及油漆的吸附、然后喷漆处理。
四、夹紧螺栓
夹紧螺栓主要是起紧固两端压板的作用。夹紧螺栓一般是双头螺纹,预紧螺栓时,使固定板片的力矩均匀。加紧螺栓的加工:根据换热器的使用,达到相应的硬度强度和拉伸率等的特殊要求圆钢,经过机器攻丝加工好螺纹、拿去镀锌即可使用,同时也配套相应的不锈钢螺栓!
五、挂架
主要是支承换热板片,使其拆卸、清洗、组装等方便、挂架主要分两种园形或方形、圆形是用圆钢外包不锈钢主成或直接用不锈钢棒、方形主要以槽钢为主槽钢。
六、法兰或衬套
主要用于管道与换热器的对接、法兰分为10KG及16KG级等,国家标准有机械部、化工部等或非标法兰、法兰孔依据法兰大小而定、有多种材质、依工况而定、衬套常见的有304 、316L不锈钢衬套、EPDM衬套、NBR衬套。
七、地脚
主要是用来给换热器运行时的固定作用、常规来说我们地脚我们有三个或四个(有后导柱的三个、没有后导柱的有四个),形式有镀锌上螺丝的三角铁脚和碳钢脚板,都是用作与地面的固定。
八.导杆和立柱
每一台换热器都有上下导杆,方便板片的定位和支撑,长度都是根据板片的多少而确定的,一般都会比长一点,方便后期增减板片,材质一般为碳钢,也有不锈钢,立柱是用作支撑导柱和换热器后端的,材质也同样是碳钢或者不锈钢。
工作原理
可拆卸板式换热器是由许多冲压有波纹薄板按一定间隔,四周通过垫片密封,并用框架和压紧螺旋重叠压紧而成,板片和垫片的四个角孔形成了流体的分配管和汇集管,同时又合理地将冷热流体分开,使其分别在每块板片两侧的流道中流动,通过板片进行热交换。
特点
可拆式板式换热器是一种新型的节能热交换装置,具有传热效果高、结构紧凑、占地面积小、 操作简便,清洗、拆卸、维护方便,容易改变换热面积或流程组合等优点。
